行業好色先生TV污版
保溫MR好色先生网址 圖集12S101
點擊:不鏽鋼MR好色先生网址圖集 12S101
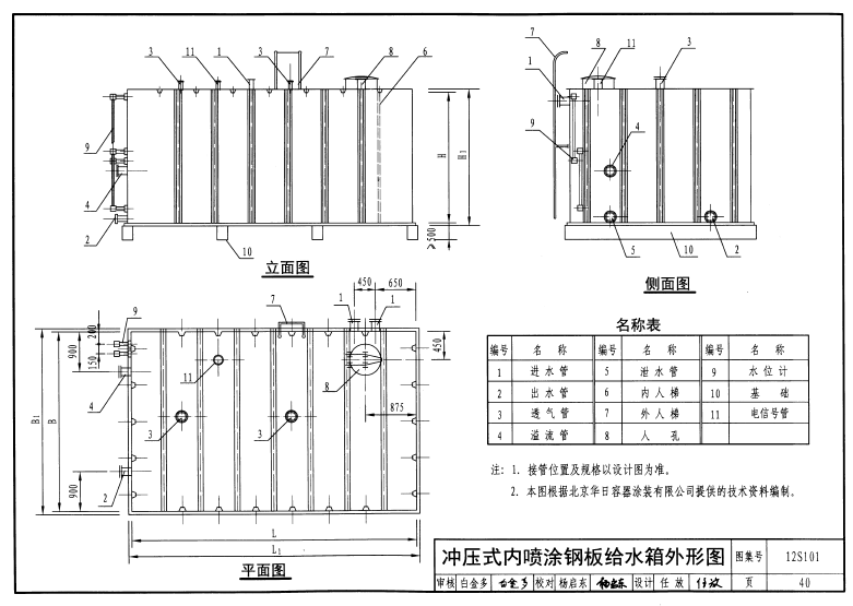
保溫MR好色先生网址圖集12S101 ( 外形圖)

保溫MR好色先生网址圖集12S101 ( 選用表一)

保溫MR好色先生网址圖集12S101 ( 選用表二)

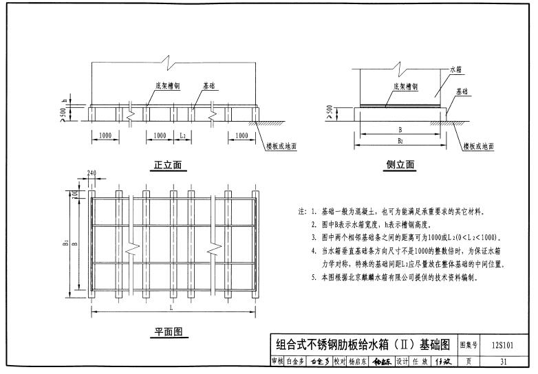
不鏽鋼保溫MR好色先生网址圖集12S101 ( 基礎圖)

相關資訊
好色先生TV污版資訊 gyoynk.com
聯係好色先生TV在线观看
電話:027-83893889
手機:15926221333 王經理
電話:027-83893889
傳真:027-83386079
Q Q:7748867
郵箱:wwxpp@126.com
工廠地址:武漢市東西湖區吳家山田園大道新城十四路

微信服務號
鄂公網安備 42011202000782號